联合办公空间在2016年成为了办公空间的主流创新形式,模块化的主题形式的办公区以及强调社交属性的办公模式,逐渐代替了大厂房形式的办公空间。同时更多的公司将办公转移到了更富有创意的厂房、仓库改造类的办公建筑。数据公园甄选了2016年具有代表性的7个厂房、仓库改造类办公建筑,为设计者及关注者介绍与分析,以提供参考。
MVRDV 新办公室
世界**设计公司MVRDV2016年完成了位于荷兰鹿特丹的新办公室的室内改造。在这间空间面积2400m2的厂房内,将传承和强化MVRDV基因作为核心概念,通过不同颜色的室内粉刷代表室内不同的功能空间,满足室内较多的工作与休憩需求。




室内被打通的五个拱形办公区域被加固,并利用透明的玻璃墙分隔实际空间,以此满足室内更浓厚的集体氛围。定制的桌子为整个团队设计,整张长桌为一个完全的独立单元,中间没有桌腿和隔板。




MVRDV 新办公室
Karma美国办公室
设计团队FormNation2016年,刚刚完成了位于纽约小意大利的Karma办公室。由于Karma是一家荷兰起家的wifi制品公司,具有简洁而实用的荷兰传统风格。设计者摒弃了当下流行的工业厂房办公室设计,创造了一个融合荷兰和美国设计的优势且充满美感的空间。通过考虑私密与公共以及自然光线的需求度,将空间分为三个主要区域,分别作为工作、会议与休息用餐使用。



整个办公区成L形布局,一条由蓝灰相间的瓷砖铺成的通道将员工迎入办公区,办公区拥有*多的自然光照,同时来自于Rich Brilliant Willing公司巨大的灯具为整个办公空间在晚间提供舒适的照明环境。会议室结合欧式与美式两种风格,简洁时尚的特点,为空间增加了透明感。灰色Moroso沙发和白色Anglepoise经典灯具的休息区,则为员工提供了舒适的饭后咖啡与休憩空间。






Karma美国办公室
MullenLowe办公室
由TPG Architecture设计的位于温斯顿塞勒姆市Wake Forest创意新区内的3500平方米的MullenLowe办公空间。设计者保留了这间上个世纪30年代的香烟工厂内深色金属框架的窗格与裸露的混凝土,以此为改造设计奠定了粗犷的基调。同时在这间4.2米净高的室内嵌入了数个木质方形盒子,形成层层镶嵌的空间结构。
方形盒体的外立面以胶合板和深灰色的石膏灰胶纸夹板覆盖着,深色的椅子呼应着方盒子墙壁的颜色与混凝土墙壁的色彩。室内一侧拥有一系列的冲孔金属板不仅满足员工的交流便捷性,同时不会影响到空间的开放性与流动性。







MullenLowe办公室
Joolz公司总部
由荷兰Space Encounters工作室为设计和制造人体工程学童车的Joolz公司,刚刚完成了位于阿姆斯特丹北部的一个1600㎡的办公楼改造。这座玻璃屋原来作为旧仓库,设计者首先去除底层室内的所有墙体,利用高耸的种满植物的玻璃屋将整个空间分成两个长廊似的办公室,玻璃屋一直连到屋顶,与天窗结合在一起。
绿植阳光房的一侧为提供休息座椅的双层空间,中心区域的白色体块包含了一个卫生间与大理石台面的咖啡间。阳光房的另一侧为两层办公空间,通过旋转楼梯连接。同时,建筑立面上增加了一排大窗户,以扩大从街道到办公室内的视野。







Joolz公司总部
A/D/O微型单元房
由美国nARCHITECTS 事务所负责改造完成的位于美国Brooklyn市Greenpoint区的A/D/O办公空间,作为纽约市周边第一个微型单元的房屋,将为设计师提供工作生活的场所。设计者利用已有十字路口旁已有的厂房结构,将原来2100平方米的建筑进行了重组,制造出融合交错着不同功能的空间。
这样的设计手法,给予室内空间相互关联。同时,设计者还对建筑入口进行了从视觉化的处理,移除面向西南角的三角形的区域,改为透明的立面,将被涂鸦的砖墙重新组装,以制造出不同的涂鸦样式,以此表现建筑以及社区间层层叠加以及穿插的历史。









A/D/O微型单元房
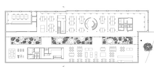
众创空间思微3.0
由一十一建筑改造设计的位于深圳的一栋联合办公空间,建筑由一栋工业建筑的首层一部分改造而来。由于室内具有很高的天花,在确保自然光线能达到场地较深区域的前提下,设计者在局部区域设计了夹层。利用天花的高度,创造出更多的变化形式。同时,利用一系列户外建筑材料使用在室内空间,作为重要公共区域的特色景观墙,红砖在室内于室外的连续铺设,以模糊室内外边界和处理高差。




建筑**特点的是由铁架搭建外包欧松板,并由一些铁的支柱承托抬升到夹层的高度的“云座”休闲吧,其摆脱室内透视主导的造型,以及隐藏结构之后整体的漂浮感,为室内创造了一个脱离工作取得休闲环境。







众创空间思微3.0
Omihihachiman工作室
由ALTS Design Office设计的位于日本滋贺县的Omihachiman新工作室,业主希望可以满足不同的群体使用,同时寻找一个能够令他们自由谈话的工作室。设计者为室内创建了四种“房子形状”的位置,通过不同尺度的模块形状,适应不同人群的社交空间。





Omihihachiman工作室
Data Park 总结
对于改造厂房型的办公空间,利用层高在纵向尺度上做文章的办公空间逐渐增多,更为开敞化以及嵌入体块型的办公设计空间,也逐渐被更多人认可,这种更富有社交属性的环境也将在未来成为办公环境的主要设计方向。而室内可持续以及生态环境的优化,也将长期作为室内设计的重点设计内容。
办公室装修低成本:精打细算,打造理想办公空间。 在当今的商业环境中,企业面临着各种成本压力。如何在有限的预算内打造舒适高效的办公空间?本文将为您揭示办公室装修低成本的秘密,帮助您精打细算,实现理想办公环境的创造。
办公室装修,是每个企业必须面对的问题之一。而选择一家专业的办公室装修公司,对于企业而言则显得更加重要。那么,你知道如何选择一家合适的办公室装修公司吗?接下来,小编就为大家介绍几个注意点。
办公室装修属于公装范畴,跟普通家装的设计不同,不但要凸显公司的文化底蕴,还要展现公司的氛围,在装修收费方面也有很大差异。那么,办公室装修价格怎样?一平方多少钱?下面就让领企上海办公室设计公司小编为大家做详细介绍。
一个好的写字楼环境可以极大的提升员工的工作热情,所以写字楼装修设计合理与否,需要大家重视。好的写字楼装修不仅可以利用更大的空间,还能营造积极的工作氛围。那么如何做好办公室设计呢?这里面其实有不少的学问。今天上海办公室设...
每个人都渴望宽敞明亮的办公空间。但是在房价飙升的时代,尤其是一二线城市,写字楼的购买价格 租金是非常高的。所以想装修办公室的老板们都希望提高空间利用率,满足多样化的需求。既能给员工带来便利,又能提升企业形象,满足发展...